 |
電話:021-51606288
51606278 51606268
傳真:021-51606258
|
節假日聯系方式 |
TEL:13321938988 陳先生
13370018911 |
|
|
 |
|
3J多缸串聯計量泵
多缸串聯計量泵 ,可以由同機座、同參數;同機座、不同參數;不同機座、不同參數的各種單缸計量泵任意組合串聯而成,并由一臺電機直聯驅動。液力端可以是隔膜形式、柱塞形式,可以根據工藝流程的需要按比例同時輸送多種介質。其計量精度、調節方式及特殊用途與單缸計量泵相同。 |
結構說明: |
|
多缸串聯計量泵共同底座的臥式單作用可調節容積泵,可用于串聯機座有,JX、JZ,他們之間可任意組合串聯。 |
型號意義: |
|
 |
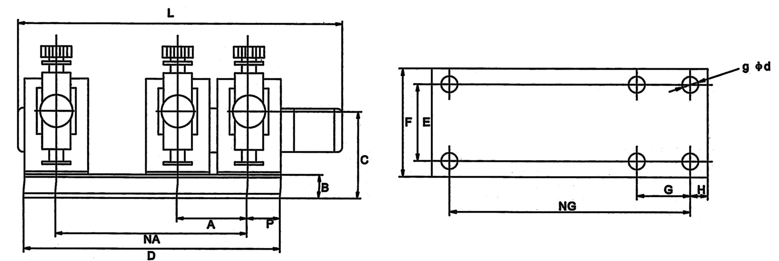
外形尺寸: |
|
 |
型號 |
缸數 |
N |
A |
B |
C |
D |
P |
L |
E |
F |
H |
G |
g |
d |
高壓 |
低壓 |
JW |
2 |
1 |
236 |
75 |
195 |
56 |
348 |
670 |
670 |
250 |
280 |
50 |
248 |
4 |
14 |
3 |
2 |
236 |
75 |
195 |
56 |
584 |
907 |
942 |
250 |
280 |
50 |
242 |
6 |
14 |
4 |
3 |
236 |
75 |
195 |
56 |
820 |
1178 |
1178 |
250 |
280 |
50 |
240 |
8 |
14 |
5 |
4 |
236 |
75 |
195 |
56 |
1056 |
1414 |
1414 |
250 |
280 |
50 |
240 |
10 |
14 |
JX |
2 |
1 |
266 |
75 |
195 |
76 |
416 |
830 |
830 |
250 |
280 |
50 |
316 |
4 |
14 |
3 |
2 |
266 |
75 |
195 |
76 |
682 |
1096 |
1126 |
250 |
280 |
50 |
290 |
6 |
14 |
4 |
3 |
266 |
75 |
195 |
76 |
948 |
1392 |
1417 |
250 |
280 |
50 |
283 |
8 |
14 |
5 |
4 |
266 |
75 |
195 |
76 |
1214 |
1630 |
1728 |
250 |
280 |
50 |
278 |
10 |
14 |
JZ |
2 |
1 |
266 |
100 |
310 |
107 |
480 |
903 |
948 |
350 |
384 |
80 |
320 |
4 |
18 |
3 |
2 |
266 |
100 |
310 |
107 |
746 |
1214 |
1214 |
350 |
384 |
80 |
293 |
6 |
18 |
4 |
3 |
266 |
100 |
310 |
107 |
1012 |
1480 |
1510 |
350 |
384 |
80 |
284 |
8 |
18 |
5 |
4 |
266 |
100 |
310 |
107 |
1278 |
1776 |
1826 |
350 |
384 |
80 |
280 |
10 |
18 |
JD |
2 |
1 |
410 |
125 |
433 |
145 |
700 |
1175 |
1255 |
470 |
520 |
100 |
500 |
4 |
22 |
3 |
2 |
410 |
125 |
433 |
145 |
1100 |
1615 |
1750 |
470 |
520 |
100 |
455 |
6 |
22 |
4 |
3 |
410 |
125 |
433 |
145 |
1520 |
2075 |
2220 |
470 |
520 |
100 |
440 |
8 |
22 |
5 |
4 |
410 |
125 |
433 |
145 |
1930 |
2525 |
2670 |
470 |
520 |
100 |
433 |
10 |
22 |
JT |
2 |
1 |
488 |
150 |
500 |
185 |
858 |
1428 |
1533 |
600 |
650 |
120 |
618 |
4 |
22 |
3 |
2 |
488 |
150 |
500 |
185 |
1346 |
2021 |
2061 |
600 |
650 |
120 |
553 |
6 |
22 |
4 |
3 |
488 |
150 |
500 |
185 |
1834 |
2549 |
2584 |
600 |
650 |
120 |
530 |
8 |
22 |
5 |
4 |
488 |
150 |
500 |
185 |
2322 |
3072 |
3092 |
600 |
650 |
120 |
520 |
10 |
22 |
|
|
|